Ir al contenido
Inicio
Sobre mi
Servicios
Proyectos
Contacto
Inicio
Sobre mi
Servicios
Proyectos
Contacto
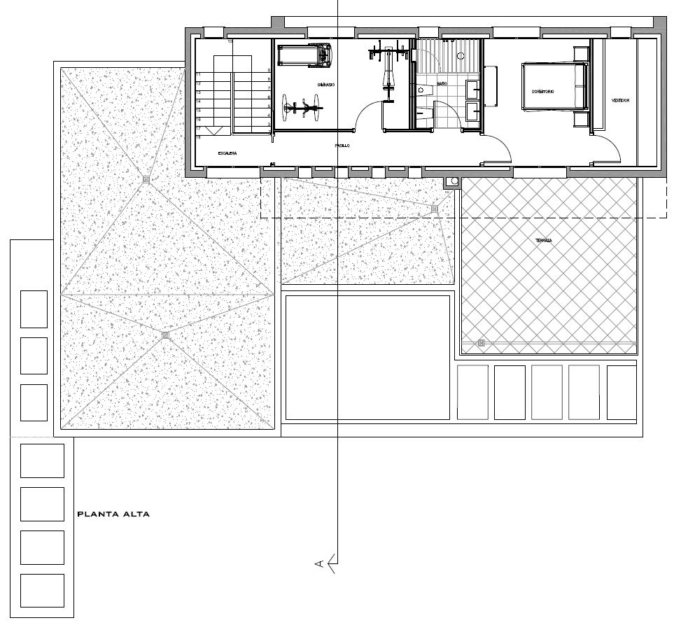
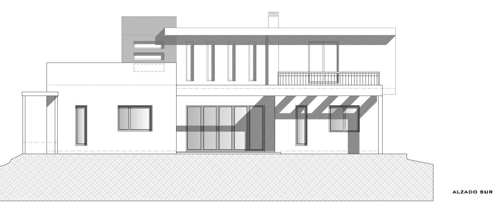
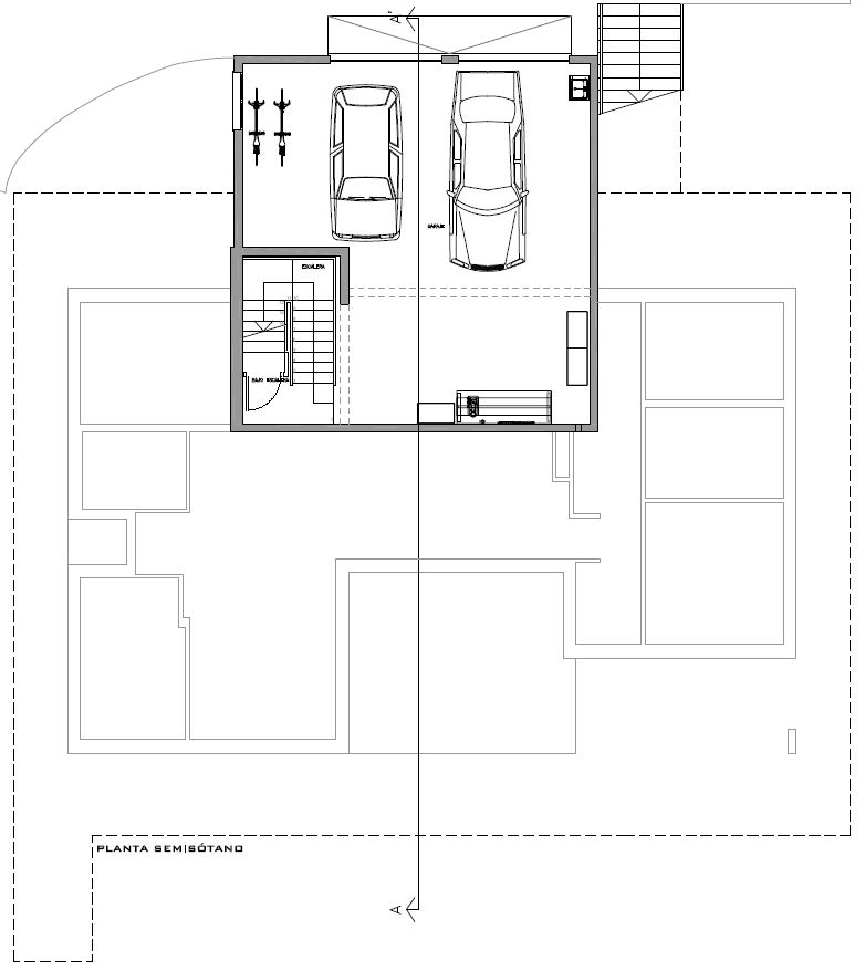
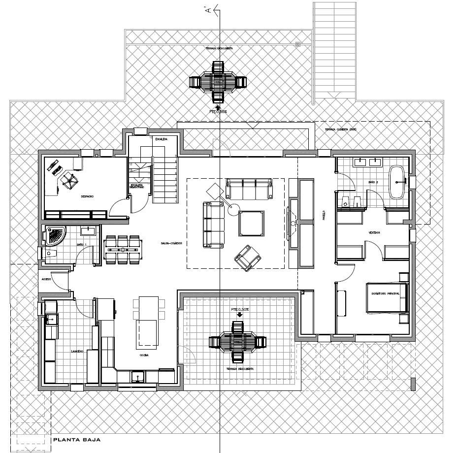
Vivienda en Urb Tancat del Alter Picassent
por Daniel Sevilla