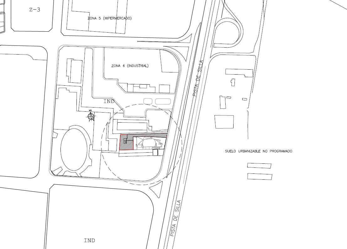
Parcela irregular con un único frente a vial (C/Rabisancho). Se conforma por un gran “pasillo” de acceso de unos 76,25 metros que te lleva desde el vial al fondo del solar, donde se desarrollará la actividad, con medidas de 27,87ml al Norte (limite medianero con Hotel), 34,48ml al Oeste (límite con Centro Comercial), 31,42ml al Sur (limite medianero con Almacén existente) y 28,53ml+5,79ml al Este (límite con parcela 02, Bluespace)
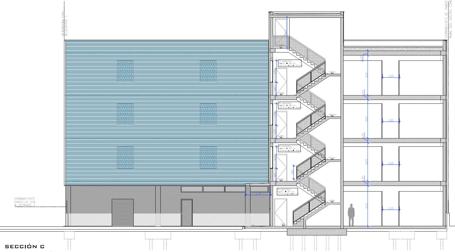
Edificio industrial de nueva planta adosado a medianeras con acceso peatonal y rodado desde calle Rabisancho, estará compuesto por cuatro plantas: P.Baja + 3, todas ellas sobre rasante. La cota en el punto medio de fachada de acceso en la C/Rabisancho es la +5,30 (m.s.n.m), y la planta baja del edificio queda 70cm por encima de este punto, a la cota +6,00 (m.s.n.m) cumpliendo así lo dispuesto en el artículo 144 punto “b” del PGOU (3/3/1992 B.O.P.) donde expone que “en la planta baja, el piso deberá elevarse 0,5m sobre la cota del terreno, medida en el punto medio del frente de fachada”
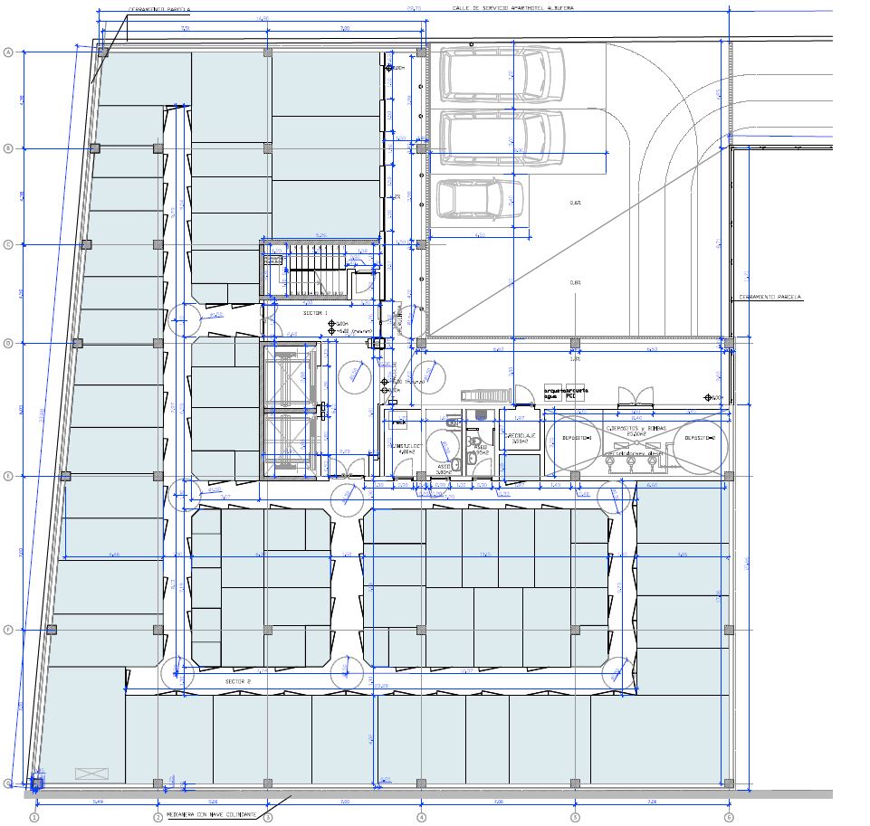
El espacio exterior se conforma mediante un patio de distribución, al que se accede directamente desde el pasillo de acceso, donde se prevé una zona de aparcamiento, carga y descarga a la vez y el acceso al edificio. Los frentes de fachada en la zona del patio en planta baja quedan porticados. Perimetralmente el edificio queda vallado y separado de los vecinos, siendo la altura media de la cerca de 2m, ejecutada como marca la normativa sobre un basamento macizo de fábrica de bloque prefabricado de hormigón de 1,00m y vallado metálico de 1,00m sobre el mismo.
Acceso peatonal desde la calle mediante puerta metálica de acceso y evacuación de paso 0,85m x 2,00m de una hoja de giro vertical. Acceso rodado mediante puerta metálica corredera de aproximadamente 5,00m de anchura para entrada y salida de vehículos.
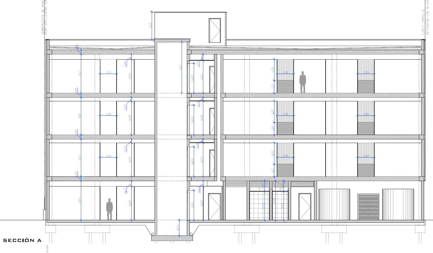
Se considerará la cota de planta baja – +6,00m (m.s.n.m)-, la cota 0,00m del proyecto. Se accede a la planta Baja del edificio a pie plano y sin desniveles a través de una puerta metálica corredera de 2,50metros de anchura que se acciona mediante teclado con código personal. El cerramiento del vestíbulo es de carpintería de aluminio con vidrio 6+6 y la puerta de evacuación también de vidrio permite iluminar de manera natural el vestíbulo de entrada.
La planta baja tiene una altura libre de 3,15m, reducida puntualmente por conductos o equipos de ventilación, instalaciones, tuberías o similares, siendo siempre superior a 2,30m.
La planta baja está formada por vestíbulo de comunicación, zona de trasteros y una serie de cuartos de instalaciones, cuarto de basuras y reciclaje (ventilados directamente a exterior), y dos aseos uno de ellos accesible.










