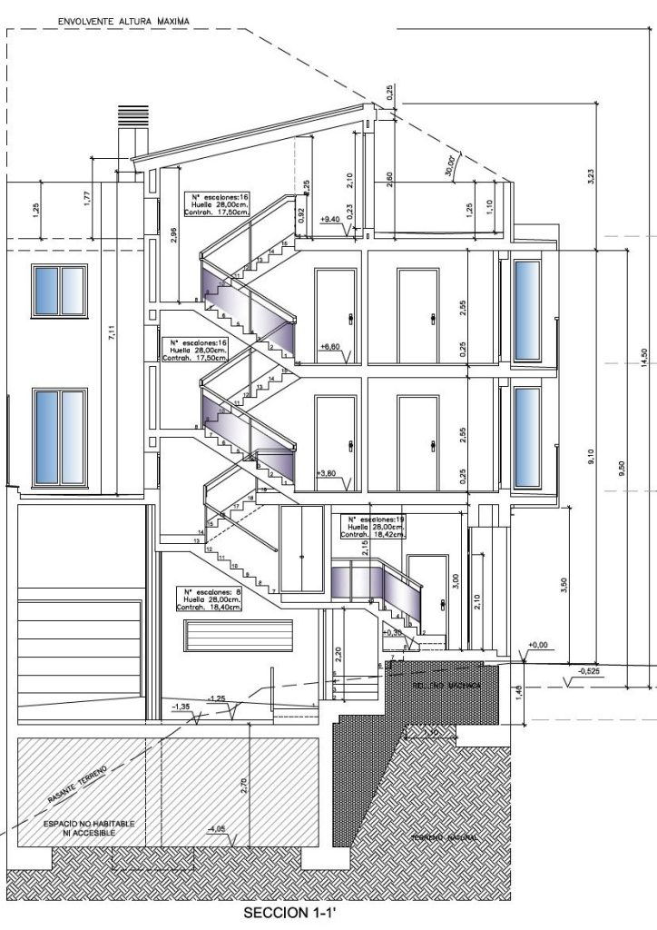
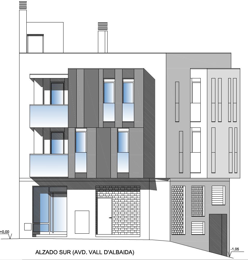
La edificación está integrada por un edificio en esquina de tres alturas sobre rasante.
En general, el proyecto distribuye las plantas sobre rasante en dos viviendas con las distribución de espacios habitual en viviendas. En la planta baja con nivel -1,20 se situará el espacio común para aparcamiento.
Tendrá el siguiente programa de necesidades:
PLANTA BAJA (NIVEL +0,30)): En ella se encuentran el acceso peatonal. Una vez en el interior se dispone la escalera que da acceso al resto de plantas superiores. y al garaje, situado en la planta inferior (Planta Baja Nivel -1,25). También se da acceso a un pequeño cuarto de reserva de residuos conforme a los requisitos del CTE. En esta planta se sitúa un Local sin Uso (pendiente de habilitación). Este local tiene dos huecos a fachada desde la que tiene acceso. También se accede a este local a través del zaguán del edificio.
En esta planta se sitúa un planta intermedia que sirve únicamente de acceso para el mantenimiento del patio de luces trasero
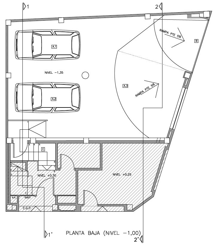
PLANTA BAJA (NIVEL -1,00): En esta planta se sitúa el aparcamiento para alojar las plazas de garaje exigidas por el planeamiento. A ella se accede peatonalmente a través de una escalera desde la planta baja con Nivel +0,30.
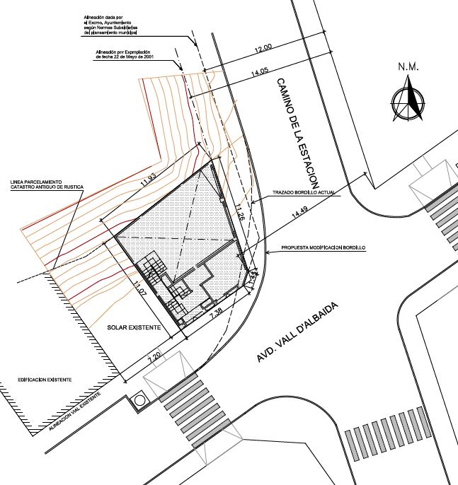
El acceso de vehículos se realiza a través de un acceso rodado situado en la calle del Camino de la Estación.. En esta planta se ubican dos plazas de aparcamiento.
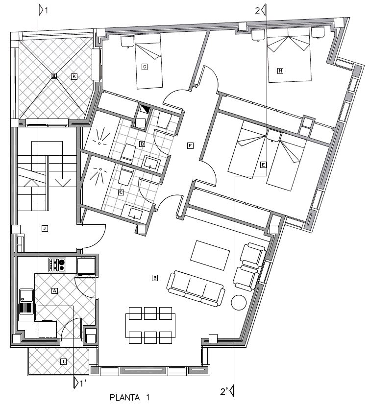
PLANTA 1: A esta planta se accede a través de la escalera comunitaria y está destinada a vivienda compuesta por, salón comedor, cocina, pasillo, dos baños, dormitorio doble, dormitorio sencillo y el dormitorio principal. A través de la cocina se accede a una terraza/balcón cubierta privativa, situada en la fachada a Avda. Vall d’Albaida. Desde uno de los dormitorios se accede a un patio de luces comunitario de uso privativo
PLANTA 2: A esta planta se accede a través de la escalera comunitaria y está destinada a vivienda compuesta por, salón comedor, cocina, pasillo, dos baños, dormitorio doble, dormitorio sencillo y el dormitorio principal. A través de la cocina se accede a una terraza/balcón cubierta privativa, situada en la fachada a Avda. Vall d’Albaida..
PLANTA CASETON: A esta planta se accede a través de la escalera y está destinada a uso comunitario para el secado de ropa y otros usos complementarios.









